Toon Project
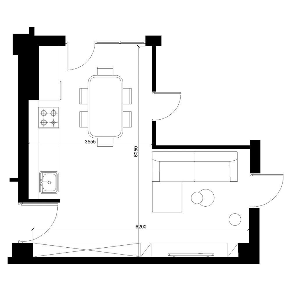
Modern studio 20
Sono necessari 27 crediti per scaricare.
Crediti giornalieri - 20 / 20?Hai 3 crediti gratuiti ogni giorno!
Scena 3D - Modern studio 20
Modern studio 20
3D's Max 2018
Render - Corona 7







