Yony Coaquira
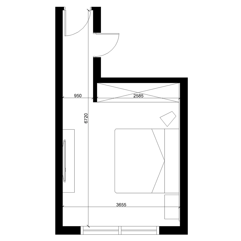
Modern bedroom 53
Sono necessari 17 crediti per scaricare.
Crediti giornalieri - 20 / 20?Hai 3 crediti gratuiti ogni giorno!
Scena 3D - Modern bedroom 53
Modern bedroom 53
3D's Max 2018
Render - Corona 7







