Tynai Mamytov
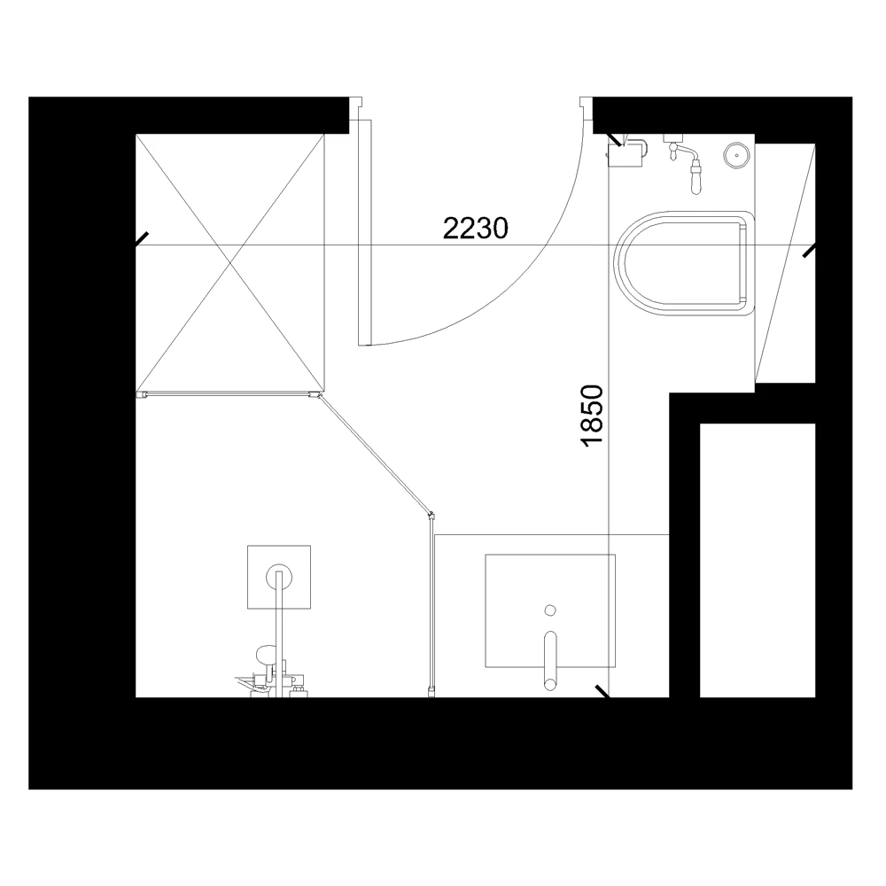
Modern bathroom 89
Sono necessari 14 crediti per scaricare.
Crediti giornalieri - 20 / 20?Hai 3 crediti gratuiti ogni giorno!
Scena 3D - Modern bathroom 89
Modern bathroom 89
3D's Max 2018
Render - Corona 7





