Toon Project
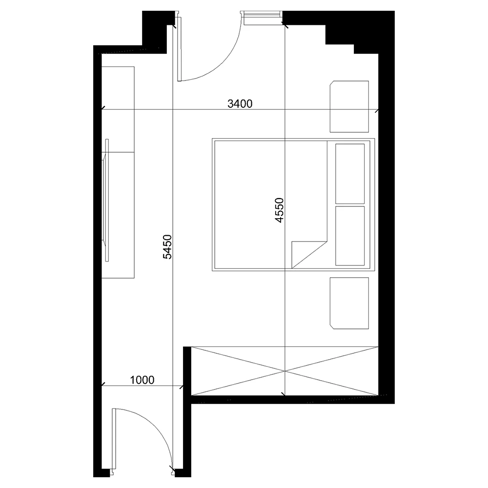
Master bedroom
Se requieren 29 créditos para descargar.
Créditos diarios - 20 / 20?¡Tienes 3 créditos gratuitos cada día!
Escena 3D - Master bedroom
Master bedroom
3D Max 2018
Render - Corona 7





