Детали продукта
Категория
Жилые помещения
Стиль
Неоклассика
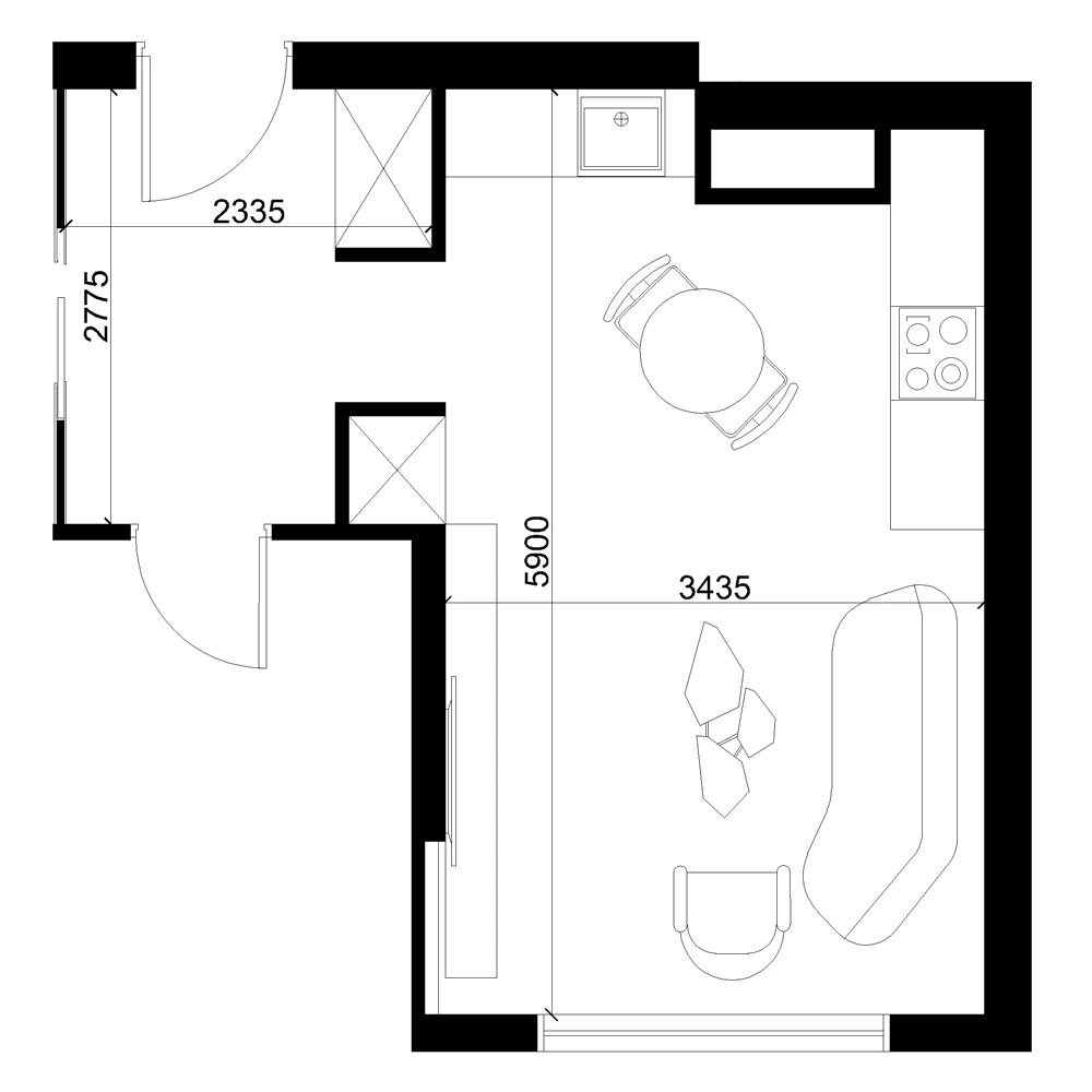
Neoclassical studio 17
3D's Max 2018
Render - Corona 7










