INVIZ
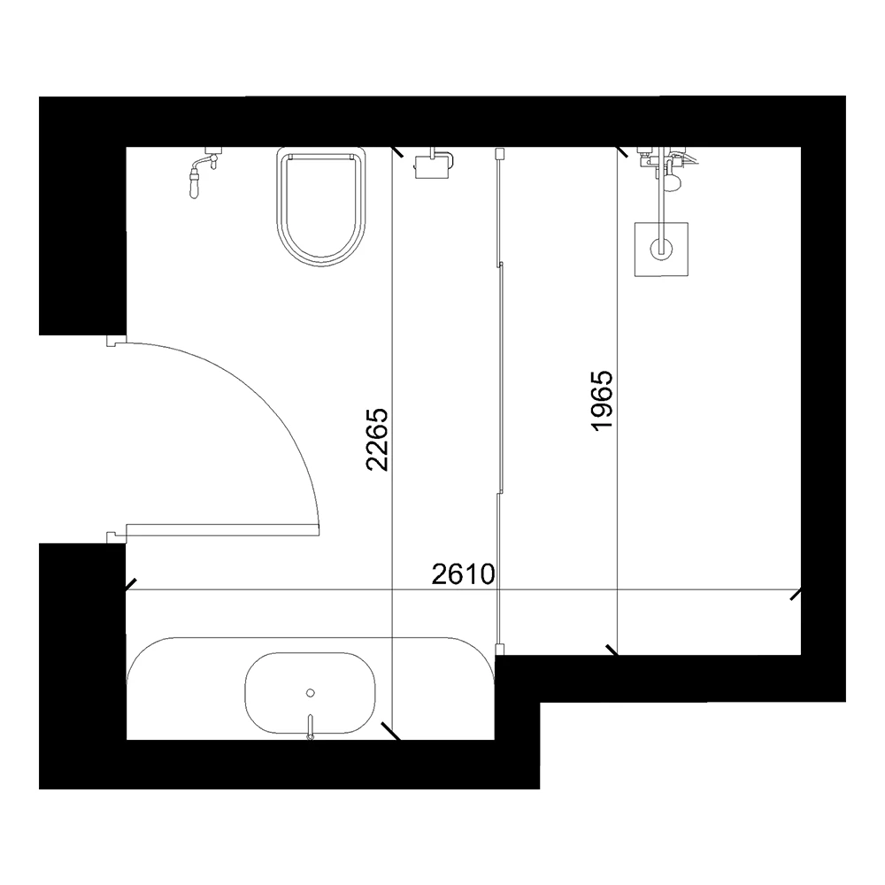
Neoclassical bathroom 24
18 credits required to download.
Daily Credits - 20 / 20?You Have 3 Free Credits Available Every Day!
3D Scene - Neoclassical bathroom 24
Neoclassical bathroom 24
3D Max 2018
Render - Corona 7







