Tynai Mamytov
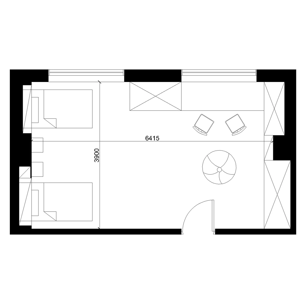
Neoclassical childroom 30
17 credits required to download.
Daily Credits - 20 / 20?You Have 3 Free Credits Available Every Day!
3D Scene - Neoclassical childroom 30
Neoclassical childroom 30
3D's Max 2018
Render - Corona 7









